QE Double Trolley Overhead Crane
We provide one-stop crane and hoist solution for clients, which is customized according
the client's detailed working conditions.
We provide one-stop crane and hoist solution for clients, which is customized according
the client's detailed working conditions.


The double trolley overhead crane is used to lift long and big loads with the capacity of ((2.5+2.5)~(200+200)t.
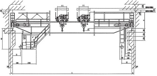
Send InquiryDouble trolley overhead crane is an overhead crane equipped with two trollies, which can work simultaneously or separately. They are mainly used to life long and big loads or sets of loads with two long distance lifting points. The lifting capacity of the double trolley overhead crane is 5 ton to 400 ton, and the work class is A5 and A6.
| Product Type | QE |
|---|---|
| Lifting Capacity | (2.5+2.5)~(200+200)t |
| Span Length | 10.5~35.5m |
| Working Class | A5, A6 |
| Ambient Temperature | -20~40℃ |
Double trolley hook bridge crane is mainly consisted of crane beam, cab, trolley travelling mechanism and electric equipment. The driver chamber has three open directions: side, top and end.
Double trolley overhead crane
The double trolley overhead crane are usually used in storage, workshop, stock yard or other factories and mines to lift long materials such as, pipe, wood, bar, etc.