Semi-gantry Crane
We provide one-stop crane and hoist solution for clients, which is customized according
the client's detailed working conditions.
We provide one-stop crane and hoist solution for clients, which is customized according
the client's detailed working conditions.


The semi-gantry crane is a small or middle crane, widely used in mechanical processing workshop for materials handling, outdoor place and warehouse for loading and unloading.
Send InquirySemi-gantry crane is a small or middle scale gantry crane with one side of crane girder supported by one unilateral leg which can travel on the ground track, and the other side supported on the bracket track, which wcould save cost and space of the factory. The lifting capacity of the semi-gantry crane is 2 to 20 tons, and the working class is A3 to A6. The specifications of the semi-gantry crane is as following.
Semi-gantry crane is a regular crane, which is widely used for material handling in mechanical processing workshop, outdoor place and warehouse for loads lifting and transporting.
The mechanical structure of semi-gantry crane is mainly consisted of crane bridge, travelling mechanism, trolley part, and electrical part, etc.

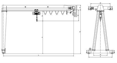
Semi-gantry Crane Drawing