L Electric Trolley Gantry Crane
We provide one-stop crane and hoist solution for clients, which is customized according
the client's detailed working conditions.
We provide one-stop crane and hoist solution for clients, which is customized according
the client's detailed working conditions.


The gantry crane is used to meet the general outdoor material handling requirements. The lifting capacity of the gantry crane is 5 to 32 tons.
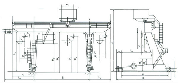
Send InquiryThe electric trolley gantry crane is a mid –light type gantry crane, equipped with electric and crane hooks, with the obvious features of “ L” shape legs, which makes the crane more convenient for handling cargo with long length, such as, steel pipe, etc. The lifting capacity of the electric trolley gantry crane is 5 to 32 ton and working class is A5 and A6. The parameters are as following:
| Product Type | L |
|---|---|
| Lifting Capacity | 5~32t |
| Span Length | 18~35m |
| Working Class | A5, A6 |
| Ambient Temperature | -25~40℃ |
Electric trolley gantry crane is mainly consisted of bridge, L shape support leg, crane travelling system, electric trolley, and electric system, etc.

Electric trolley gantry crane drawing
Electric trolley gantry crane is the optimal choice for outdoor material handling for the applications where no supporting building or steel work is available or the supporting building is not suitable for supporting overhead crane.
They are widely used in cement plant, construction, electronics industries, warehouses, railway, food, papermaking, engineering industry, etc. However, it is prohibited to be used in dangerous environments, such as, high temperature, flammable, explosive, corrosion and other environment, etc.
Warning: Overloading is strictly forbidden.